63 Yewlands,Maryborough Woods,Douglas,Cork, Douglas, Co. Cork

semi-detached house for sale by private-treaty
Property Description:
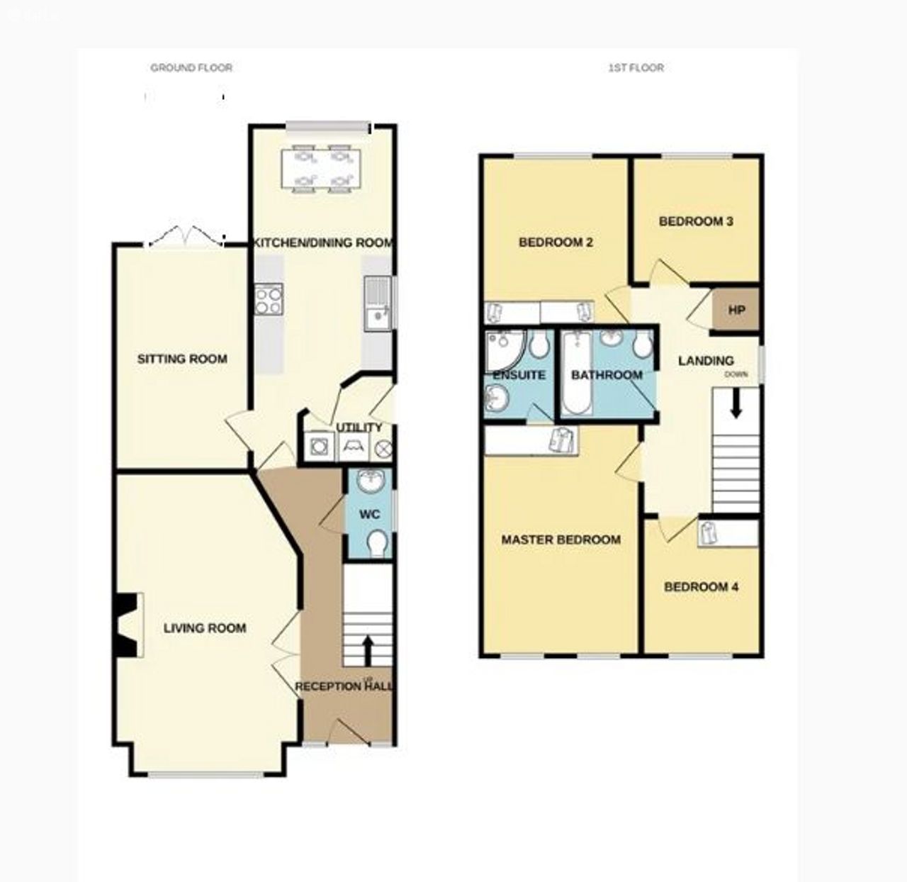
Rose Property presents: 63 Yewlands, Maryborough Woods, Cork. This 4 bedroom end of terrace home is presented in excellent condition and is located in a highly sought after residential area. The property opens into a bright and welcoming entrance hallway, featuring a timber front door with glass panels, wooden flooring, neutral dcor and a convenient guest WC. The front living room is spacious and full of natural light. The kitchen is fully fitted, there is also a separate utility room which has access to the back garden. There is a lovely enclosed garden to the rear with decking area perfect for al fresco dining. Upstairs consists of 4 spacious bedrooms, 3 of which have built in wardrobes. One with an en suite and also a separate main bathroom.The heating is gas fired and energy rating is a solid C1. Built 2001. Bus stop inside this development, 120 meters from no.63 for the 216 route to the city center. Extremely convenient! Close to Cork Airport & Link roads. Ideally located close to Douglas Village with a range of shops and amenities nearby, this home benefits from excellent transport links including local bus routes and easy access to the South Link Road network. Its also conveniently situated for Cork Airport, Little Island, and Ringaskiddy. Dimensions - Kitchen including utility room 7.05 x 2.82 Dining room 4.15 x 2.5 Hall including guest toilet 5.1 x 1.9 Living room 5.78 x 3.52 Bedroom 4.42 x 3.01 En suite 1.78 x 1.43 Bedroom 3.59 x 2.89 Bedroom 2.65 x 2.41 Bedroom 2.62 x 2.48 Bathroom 1.94 x 1.76 Landing 4.00 x 1.76 Viewings are highly recommended to fully appreciate all that this excellent property has to offer. After your viewing, if you want to make an offer then please press the button inside Daft ad which is labelled 'Make an Offer'. You need to be logged into Daft for this, which is free of charge. Next Daft will prompt you to send photo ID & proof of funds to the selling agent before you can be approved to make an offer. Please send photo ID & proof of funds to INFO@ROSE-PROPERTY.COM Whilst every care has been taken in the preparation of these particulars, and they are believed to be correct, they are not warranted and intending purchasers/lessees should satisfy themselves as to the correctness of the information given.
Contact Details
| Contact name: | Mark Rose |
|---|---|
| Phone number: | 021-4293333 |
| Phone between: |
Property Overview:
- 4 Bedrooms
- 3 Bathrooms